11.20.2025 / 5-minute read
Vehicle Storage System for Luxury Residence
Project Overview
Client: Private Villa Owner
Industry: High-End Residential Parking Solutions
Application: Automated Underground Vehicle Storage
Core Challenge: To design and install a sophisticated vehicle storage system enabling seamless transition of two vehicles from ground level to underground parking with precise space optimization.
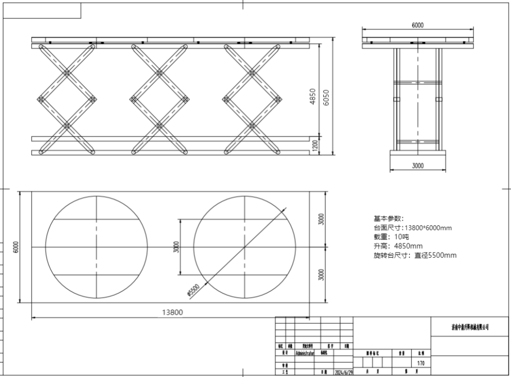
Basic Parameters

| Parameter | Specification |
|---|---|
| Load Capacity | 10,000 kg |
| Platform Size | 13,800 × 6,000 mm |
| Travel Height | 4,900 mm |
| Lifting Speed | 4 m/min |
| Power System | 12.5 kW Hydraulic Power Unit |
| Control System | Siemens PLC + Schneider Components |
| Rotating Platforms | 2 × Ø5,500 mm (1 RPM) |
| Finish | Matte White |
Challenge
- Limited Space: Required efficient storage for multiple vehicles within confined underground area
- Precision Maneuvering: Needed exact 90-degree vehicle rotation for orderly parking arrangement
- Aesthetic Integration: Equipment must maintain visual appeal while providing industrial-grade performance
- User-Friendly Operation: Required simple, reliable control system for daily residential use
Solution
System Architecture Design
- Overall Layout: Utilizes a large 13.8m×6m platform that perfectly accommodates two standard parking spaces
- Structural Design: Three-level, two-span frame structure ensures structural stability when bearing 10-ton loads
- Space Optimization: Equipment retracted height below 1200mm maximizes underground space utilization
Core Technical Highlights
- Synchronized Lifting System
- Employs 4 sets of Φ120-100 hydraulic cylinders for smooth synchronous lifting
- Lifting speed of 4m/min ensures operational stability
- Siemens PLC controls lifting synchronization accuracy within ±5mm
- Independent Rotating Platforms
- Two independent rotating platforms with 5500mm diameter
- Rotation speed of 1 RPM, equipped with parking damping devices
- Precise rotation positioning achievable while platform is stationary
Intelligent Control System
- Core Control: Integrated control using Siemens PLC
- Execution Components: Schneider brand ensures reliability
- Operation Method: Two wireless remote controllers with integrated control functions
- Safety Monitoring: Real-time system status monitoring ensures operational safety
Safety Protection Design
- Structural Safety: Uses 250×100×6mm rectangular tubes and [20 channel steel to ensure structural strength
- Hydraulic Safety: Beijing Huade pumps and valves combined with Hengyu cylinders provide reliable power assurance
- Electrical Safety: Siemens motors with secondary energy efficiency rating, energy-saving and environmentally friendly
- Emergency Measures: Manual pressure relief system on the platform ensures safe operation in emergencies
Humanized Design
- Aesthetic Design: Matte white finish perfectly integrates with villa environment
- Operational Convenience: Compact and aesthetically designed remote controllers with simple operation
- Maintenance Ease: Modular design facilitates later maintenance and servicing



































